住朋网 住朋网 住朋网
图片

明城国际中心在售

团购登记 VIP特权

11700元/㎡

参考价格 计算器

报价日期:2010-11-28,有效期至:2010-12-28。按揭、全款皆可。(该价格为参考价格,实际价格以开发商为准!)

住宅

物业类型
(毛坯) 网友报价
楼盘关注度:32156人
预售证号:
长房售许字(2010)第8961号
开盘时间:
2010-07-01
交房时间:
2011年12月
项目地址:
项目位于长沙市芙蓉中路与白沙路的交汇处西北角。
售楼地址:
芙蓉中路与白沙路交汇处的西北角
联系电话:
4008-100-077 转
产权年限:
-
物业类型:
住宅
装修情况:
毛坯
所在城区:
芙蓉区
售楼地址:
芙蓉中路与白沙路交汇处的西北角
项目位置:
项目位于长沙市芙蓉中路与白沙路的交汇处西北角。
商:
 
费:
物业公司:
 
数:
1200户
地:
9.63亩
面:
89559.00平米
率:
11.16
绿率:
20%
展开更多
  • 发送楼盘信息
  • 订阅
    点击加载更多
    明城国际中心是湖南**的酒店运营专家明城国际旗下“明城地产”斥巨资打造的超高层项目。项目位于长沙市芙蓉中路与白沙路的交汇处西北角。

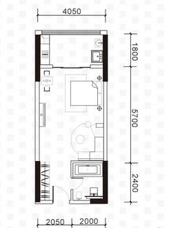
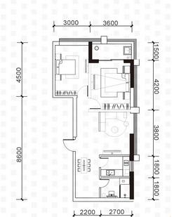
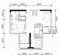
    明城国际中心是目前湖南**超高层楼宇,建筑高达153.05米,放眼全城亦属罕见。项目共有48层,总建筑面积约为9万平方米,**户数近1200户,由50-60平方米单身公寓产品、100平方米二房户型、120平方米三房户型、3层底商组成,其中50-60平方米的小户型占80%。
    查看更多

    猜你喜欢

    预约看房

    手机号
    姓名
    分享到
    分享到QQ、微信等,请使用浏览器、微信、QQ的分享功能进行分享,您也可以复制以下链接进行分享。
    发送楼盘信息到手机
    拨打

    楼盘点评
    在线咨询 0
    长按识别二维码
    0771-96355

    南宁住朋网微信公众号(查看更多)

    电脑端关于我们 联系我们 反馈/举报

    申明:楼盘信息由开发商提供,最终以政府部门登记备案为准,请谨慎核查。

    增值电信业务经营许可证:桂B2-20210597

    桂ICP备:桂B2-20050072-1

    桂公网安备:45010302000021

    举报电话:0771-96355 | 举报邮箱:zpgy@zp365.com

    中央网信办违法和不良信息举报中心

    广西互联网违法和不良信息举报中心

    南宁市互联网举报·辟谣平台

    涉企侵权举报专区