住朋网 住朋网 住朋网
图片

万科金域滨江售罄

团购登记 VIP特权

12000元/㎡起

参考价格 计算器

报价日期:2020-11-03,有效期至:2020-12-03。 参考均价12000-14000元/㎡(该价格为参考价格,实际价格以开发商为准!)

住宅

物业类型
(装修) 网友报价
楼盘关注度:207924人
预售证号:
南房预字(2020)第363号,万科金域滨江S3/S4号楼获预售证
开盘时间:
项目已全部售罄
交房时间:
预计2021年年底11/16/17#交房
项目地址:
广西南宁市五象新区江湾路1-1号
售楼地址:
广西南宁市五象新区江湾路1-1号
联系电话:
4008-100-077 转 13561
产权年限:
普通住宅70
物业类型:
住宅
装修情况:
装修
所在城区:
邕宁区
售楼地址:
广西南宁市五象新区江湾路1-1号
项目位置:
广西南宁市五象新区江湾路1-1号
商:
南宁万滨房地产有限公司
 
费:
2.78元/平米/月
物业公司:
南宁万科物业发展有限公司
其他信息:
2.78元/㎡/月
 
数:
1342户
地:
104.00亩
面:
173331.60平米
率:
2.50
绿率:
35%
车位描述:
车位提供1797个
建筑详情:
高层23-28层、洋房6-11层
展开更多
  • 发送楼盘信息
  • 订阅
收起
  • 在售
  • 待售
  • 售完
    点击加载更多
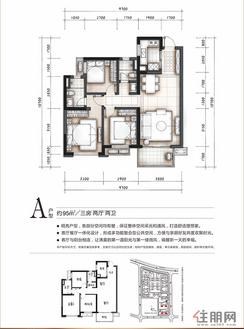
    万科金域滨江,坐落于五象新区龙岗板块的一线江景住宅区,占地面积约104亩,由5栋23-28层,面积为90-120M2 (建面)3房和4房高层,14栋6-11层,面积为144-200M2 (建面)4房和5房洋房组成,**1342户,1728个停车位。整个社区容积率为2.5,是一个低密宜居的滨江住区。同时**了1条风情商业街道,风情商业街道由4栋商业盒子和部分底商组成,可以经营超市、特色餐饮、休闲娱乐、美容美发、健身等多种业态,方便业主在家门口消费体验。周边生态资源得天独厚,北靠邕江,环境宜人,依托江景以及周边自然景观资源,打造法式新古典艺术园景美宅。
    项目建筑设计使用新古典法式风格,整个建筑群充满典雅、简约的大都会气息。商业广场的精神堡垒、小区主入口选取了卢浮宫经典建筑元素、配以仪式感树阵以及新古典拱形门窗,彰显着古典风范,给您带来优雅大气的归家仪式感。
    查看更多

    本小区二手房

    预约看房

    手机号
    姓名
    分享到
    分享到QQ、微信等,请使用浏览器、微信、QQ的分享功能进行分享,您也可以复制以下链接进行分享。
    发送楼盘信息到手机
    拨打

    楼盘点评
    在线咨询 0
    长按识别二维码
    0771-96355

    南宁住朋网微信公众号(查看更多)

    电脑端关于我们 联系我们 反馈/举报

    申明:楼盘信息由开发商提供,最终以政府部门登记备案为准,请谨慎核查。

    增值电信业务经营许可证:桂B2-20210597

    桂ICP备:桂B2-20050072-1

    桂公网安备:45010302000021

    举报电话:0771-96355 | 举报邮箱:zpgy@zp365.com

    中央网信办违法和不良信息举报中心

    广西互联网违法和不良信息举报中心

    南宁市互联网举报·辟谣平台

    涉企侵权举报专区