在新的政策背景和市场诉求下,刚需依旧占据市场主导。小三房以面积实用性强、房间数量充足、居住功能齐全和总价控制较低而越来越受到购房者的青睐。这类性价比高的房源,十分适合一些期望一步到位的购房者,对于一般的工薪家庭和急于买房结婚的年轻人来说,选择小三房既可以保证居住质量又可以大幅降低经济压力。住朋网-广西房地产信息网新房编辑汇总了部分80㎡左右南宁刚需精致小三房房源信息,方便大家作为买房参考。
所属区域:江南区
楼盘价格:6300元/㎡起(**房)
楼盘动态:保利城保利城15套**精装房,6300元/㎡起。首付仅5.6万起,就得精装3房2厅,**3天。2期房源,全新精装标准,同步火热预约中!

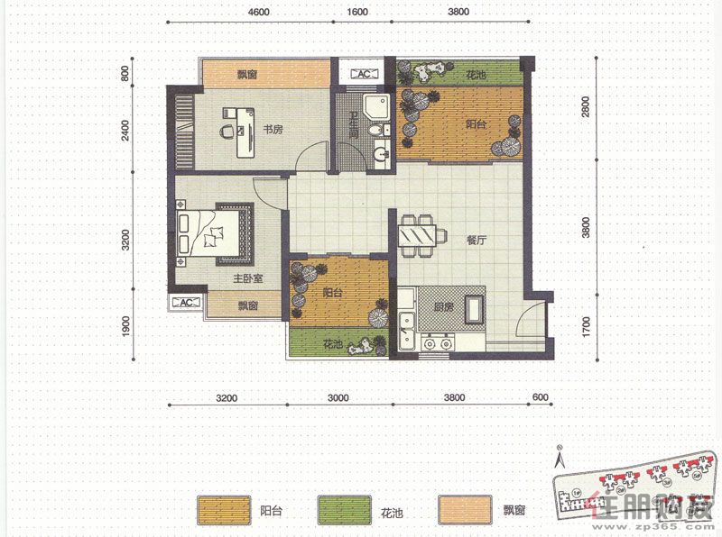
A1户型2+1房2厅 2房2厅2卫1厨3阳台【点击查看户型图】
建筑面积:87.26㎡
户型描述:该户型为弹性户型,2房可以变3房。建筑面积约87.26-88.03㎡,赠送面积约12.67㎡。
购房热线:4008-110-007 转 1333 或 96355
项目地址:南宁市江南区五一西路
项目简介:保利城项目位于南宁市江南区五一西路,北靠邕江,南临五一西路主干道,项目总占地约99亩……【详情】
加入住朋会,买房更实惠!【申请住朋会会员卡】
51分站联动,第四届南宁购房节4月29日举行,团购买房优惠多,80个精品楼盘,100辆大巴免费接送,成交送空调!报名:96355
本网编辑推荐阅读——
精装房水分到底有多少?南宁在售精装房源大搜罗
西乡塘、兴宁区25盘**报价 抄底价格特惠全城
城南区4盘预计4月推新 86折优惠暖春犒劳有好礼
青秀区22热盘本周**报价 多盘推一口价特惠房源
2012年第4届南宁购房节10条精选购房线路首度曝光
4月看房团与您约“惠” 看房会员火热报名中
所属区域:西乡塘区
楼盘价格:均价6380元/㎡
楼盘动态:瀚林御景抢手“非凡N+1”现正热卖,房源有79㎡阔绰两房,85㎡大三房,122㎡双卫大四房。

8#1—02户型装修前 3房2厅1卫1厨2阳台【点击查看户型图】
建筑面积:84㎡
户型描述:图片为装修前户型图。该户型为舒适2房变3房;人性化户型设计,功能分区合理;双阳台设计;超大完美飘窗设计,采光更充足,美景一览无余。
购房热线:4008-110-007 转 1351 或 96355
项目地址:南宁市西乡塘区大学东路9号
项目简介:瀚林御景是瀚林地产在南宁开发的第五个楼盘,瀚林御景在总结了前期项目的成功优点后很好的沿袭瀚林精工地产的精华。精工、轻轨、西大是瀚林御景……【详情】
加入住朋会,买房更实惠!【申请住朋会会员卡】
51分站联动,第四届南宁购房节4月29日举行,团购买房优惠多,80个精品楼盘,100辆大巴免费接送,成交送空调!报名:96355
本网编辑推荐阅读——
精装房水分到底有多少?南宁在售精装房源大搜罗
西乡塘、兴宁区25盘**报价 抄底价格特惠全城
城南区4盘预计4月推新 86折优惠暖春犒劳有好礼
青秀区22热盘本周**报价 多盘推一口价特惠房源
2012年第4届南宁购房节10条精选购房线路首度曝光
4月看房团与您约“惠” 看房会员火热报名中
正恒·国际广场新楼栋加推 预约享10000元购房优惠

详情进入【正恒·国际广场户型图】【正恒·国际广场动态】【正恒·国际广场图库】
所属区域:西乡塘区
楼盘价格:折后5580元/㎡起
楼盘动态:正恒·国际广场千人抢购,新楼栋加推预约中!预约即享10000元购房优惠,再获惊爆大礼!升级预约即将启动:凡在3月24日的客户,在3月24日开盘销售中未成功购房的,请于3月31日—4月8日期间前往营销中心办理升级手续,可额外享受10000元升级优惠。超值升级大礼,先到先得!

5B-01户型 2房2厅1卫1厨1阳台【点击查看户型图】
建筑面积:85㎡
户型描述:“2+1”户型结构,2房变3房,随心所欲;卧室紧接景观阳台,直面小区花园,景色尽收眼底。
购房热线:4008-110-007 转 1187
项目地址:南宁市西乡塘区明秀西路111号(广西财经学院对面)
项目简介:正恒·国际广场是南宁市五里亭四街片区旧城改造项目,也是目前南宁城市中心规模**、功能*齐全的城市综合体……【详情】
加入住朋会,买房更实惠!【申请住朋会会员卡】
51分站联动,第四届南宁购房节4月29日举行,团购买房优惠多,80个精品楼盘,100辆大巴免费接送,成交送空调!报名:96355
本网编辑推荐阅读——
精装房水分到底有多少?南宁在售精装房源大搜罗
西乡塘、兴宁区25盘**报价 抄底价格特惠全城
城南区4盘预计4月推新 86折优惠暖春犒劳有好礼
青秀区22热盘本周**报价 多盘推一口价特惠房源
2012年第4届南宁购房节10条精选购房线路首度曝光
4月看房团与您约“惠” 看房会员火热报名中
荣和摩客MOCO社区**热推18套64㎡的户型,可华丽变身78㎡超值性价比三房,仅39.9万!

详情进入【荣和摩客MOCO社区户型图】【荣和摩客MOCO社区动态】【荣和摩客MOCO社区图库】
所属区域:西乡塘区北湖北路
楼盘价格:均价6700元/㎡
楼盘动态:**热推18套64㎡的户型,可华丽变身78㎡超值性价比三房,仅39.9万!二期新品紧急加推:40㎡LOFT户型,4.4米层高,买一层得两层,享受62㎡宽适空间;64—118㎡超值平层户型,享有12-18㎡增值面积,120%-150%的空间实用率,开盘全城火爆畅销!荣和·摩客天街旺铺,主力铺型区间为30—100㎡,全城火爆预约中!

B户型 2房2厅1卫1厨2阳台【点击查看户型图】
建筑面积:78㎡
户型描述:该户型建筑面积约为78㎡,套内面积约为60㎡。两个灵动自如的阳台可改成卧室,卧室内均有飘窗。
售楼电话:4008-110-007 转 1241
项目地址:南宁市西乡塘区北湖北路6号
项目简介:荣和MOCO社区位于南宁市北湖北路东侧。东侧,北侧均为**20米道路,北侧临**路与已建成住宅小区隔路相望,南侧为1—2层旧厂房……【详情】
加入住朋会,买房更实惠!【申请住朋会会员卡】
51分站联动,第四届南宁购房节4月29日举行,团购买房优惠多,80个精品楼盘,100辆大巴免费接送,成交送空调!报名:96355
本网编辑推荐阅读——
精装房水分到底有多少?南宁在售精装房源大搜罗
西乡塘、兴宁区25盘**报价 抄底价格特惠全城
城南区4盘预计4月推新 86折优惠暖春犒劳有好礼
青秀区22热盘本周**报价 多盘推一口价特惠房源
2012年第4届南宁购房节10条精选购房线路首度曝光
4月看房团与您约“惠” 看房会员火热报名中
荣和·山水绿城二期7#楼新品房源78-89㎡拓展3房、4房正全城热销中

详情进入【荣和·山水绿城户型图】【荣和·山水绿城动态】【荣和·山水绿城图库】
所属区域:兴宁区明秀东路
楼盘价格:均价6600元/㎡
楼盘动态: 二期7#楼新品房源78-89㎡拓展3房、4房正全城热销中,均价6600元/㎡。荣和四大天街全城火爆预约,5万抵10万。

二期G-4户型装修前 2房2厅1卫1厨2阳台【点击查看户型图】
建筑面积:79.5㎡
户型描述:建筑面积约79.5㎡,套内面积约61.38㎡,卧室舒畅宽敞,大面积飘窗、阳台,空间弹性大。
购房热线:4008-110-007 转 1038 或 96355
项目地址:南宁市兴宁区明秀东路88号
项目简介:荣和·山水绿城将打造成为集住宅、商业中心、商务公寓、写字楼等为一体的大型都市综合体……【详情】
加入住朋会,买房更实惠!【申请住朋会会员卡】
51分站联动,第四届南宁购房节4月29日举行,团购买房优惠多,80个精品楼盘,100辆大巴免费接送,成交送空调!报名:96355
本网编辑推荐阅读——
精装房水分到底有多少?南宁在售精装房源大搜罗
西乡塘、兴宁区25盘**报价 抄底价格特惠全城
城南区4盘预计4月推新 86折优惠暖春犒劳有好礼
青秀区22热盘本周**报价 多盘推一口价特惠房源
2012年第4届南宁购房节10条精选购房线路首度曝光
4月看房团与您约“惠” 看房会员火热报名中
龙光·水悦龙湾婚房特惠80-112㎡N+1房首付5.9万起

详情进入【龙光·水悦龙湾户型图】【龙光·水悦龙湾动态】【龙光·水悦龙湾图库】
所属区域:西乡塘区相思湖
楼盘价格:均价6300元/㎡
楼盘动态:龙光·水悦龙湾婚房特惠80-112㎡N+1房,弹性空间高达26㎡,首付5.9万起,江湾筑巢计划即日启动,现在申请……

9#02户型装修效果示意图 3房2厅1卫1厨2阳台【点击查看户型图】
建筑面积:81.31㎡
户型描述:该户型为9#02户型,建筑面积约为81.31㎡。该户型有两个阳台。
购房热线:4008-110-007 转 1175 或 96355
项目地址:南宁市江北大道.中兴桥北.新秀公园斜对面
项目简介:龙光·水悦龙湾位于南宁市西乡塘区明秀西路170号,中兴桥北,占地123亩。项目地处西乡塘商贸中心,毗临城西大学商圈,距朝阳广场仅10**车程……【详情】
加入住朋会,买房更实惠!【申请住朋会会员卡】
51分站联动,第四届南宁购房节4月29日举行,团购买房优惠多,80个精品楼盘,100辆大巴免费接送,成交送空调!报名:96355
本网编辑推荐阅读——
精装房水分到底有多少?南宁在售精装房源大搜罗
西乡塘、兴宁区25盘**报价 抄底价格特惠全城
城南区4盘预计4月推新 86折优惠暖春犒劳有好礼
青秀区22热盘本周**报价 多盘推一口价特惠房源
2012年第4届南宁购房节10条精选购房线路首度曝光
4月看房团与您约“惠” 看房会员火热报名中
大商汇·国际住区二期72-102㎡百变增值户型,一次性付款享受98折,按揭付款享受99折.

详情进入【大商汇·国际住区户型图】【大商汇·国际住区动态】【大商汇·国际住区图库】
所属区域:西乡塘区安吉大道
楼盘价格:***5148元/㎡
楼盘动态:大商汇·国际住区二期72-102㎡百变增值户型,一次性付款享受98折,按揭付款享受99折,额外减2000元。购房成交送牛奶;老业主带新客户成交,老业主免一年物业管理费。另外还有30套特价房,5148—5608元/㎡(注:特价房不享受以上2000元额外优惠)。

大商汇A户型(尚域) 2房2厅2卫1厨3阳台【点击查看户型图】
建筑面积:84.84㎡
户型描述:南北朝向,采光通透,赠送空中花园,2+1房可变儿童房、书房,两房变三房轻松自如。建筑面积约84.84㎡,套内面积约72.56㎡。
售楼电话:4008-110-007 转 1224
项目地址:南宁市西乡塘区安吉大道47-2号
项目简介:大商汇主要由4大部分组成,分别为国际住区、国际建材城、国际家居博览中心、城市商业中心……【详情】
加入住朋会,买房更实惠!【申请住朋会会员卡】
51分站联动,第四届南宁购房节4月29日举行,团购买房优惠多,80个精品楼盘,100辆大巴免费接送,成交送空调!报名:96355
本网编辑推荐阅读——
精装房水分到底有多少?南宁在售精装房源大搜罗
西乡塘、兴宁区25盘**报价 抄底价格特惠全城
城南区4盘预计4月推新 86折优惠暖春犒劳有好礼
青秀区22热盘本周**报价 多盘推一口价特惠房源
2012年第4届南宁购房节10条精选购房线路首度曝光
4月看房团与您约“惠” 看房会员火热报名中
盛天果岭二期13、16号楼45-49㎡的1+1房,85-125㎡的2+1房、2+2房、3+1房在售

所属区域:兴宁区长堽路
楼盘价格:均价6300元/㎡
楼盘动态:二期13、16号楼45-49㎡的1+1房,85-125㎡的2+1房、2+2房、3+1房,79-154㎡的楼中楼在售,享首付3.3万元起等优惠。

12/13栋07号房标准层户型图 2房2厅2卫1厨3阳台【点击查看户型图】
建筑面积:86.41㎡
户型描述:该户型图为12/13栋07号房标准层装修后户型图。该户型是2+1房,装修前建筑面积约86.41-87.39㎡,装修后建筑面积可达103.9-104.88㎡。该户型设有2个飘窗、3个阳台,卧室旁的景观阳台可随意改造。
售楼电话:4008-110-007 转 1161
项目地址:南宁市兴宁区长堽路179号(十七中对面)
项目简介:盛天果岭项目总体定位为南宁市兴宁区中高端精品社区,是集高尚住宅、精品公寓……【详情】
加入住朋会,买房更实惠!【申请住朋会会员卡】
51分站联动,第四届南宁购房节4月29日举行,团购买房优惠多,80个精品楼盘,100辆大巴免费接送,成交送空调!报名:96355
本网编辑推荐阅读——
精装房水分到底有多少?南宁在售精装房源大搜罗
西乡塘、兴宁区25盘**报价 抄底价格特惠全城
城南区4盘预计4月推新 86折优惠暖春犒劳有好礼
青秀区22热盘本周**报价 多盘推一口价特惠房源
2012年第4届南宁购房节10条精选购房线路首度曝光
4月看房团与您约“惠” 看房会员火热报名中
资讯点评