住朋网 住朋网 住朋网
图片

潮商广场售罄

团购登记 VIP特权
地铁沿线

25000元/㎡

参考价格 计算器

报价日期:2019-04-30,有效期至:2019-05-30。(该价格为参考价格,实际价格以开发商为准!)

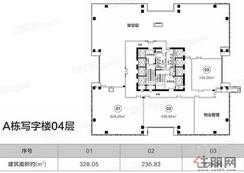
写字楼

物业类型
(毛坯) 网友报价
楼盘关注度:13820人
项目地址:
坪山区中山大道与坪联路交汇处
售楼地址:
坪山区中山大道与坪联路交汇处
联系电话:
4008-100-077 转 19141
产权年限:
-
物业类型:
写字楼
装修情况:
毛坯
所在城区:
坪山
售楼地址:
坪山区中山大道与坪联路交汇处
项目位置:
坪山区中山大道与坪联路交汇处
商:
深圳市潮商东部投资有限公司
 
费:
5.85元/平米/月
物业公司:
深圳市万科物业管理有限公司
 
地:
22.52亩
面:
108909.00平米
率:
5.48
绿率:
30%
车位描述:
【停车位数量】地上40个,地下630个
建筑详情:
潮商广场项目分为A、B座,其中,A座标准层高4.2 米,共26层,总高度约100米;B座标准层高3.3 米,共29层,总高度约100米。
展开更多
  • 发送楼盘信息
  • 订阅
    点击加载更多
    潮商广场分两座塔楼,A、B座为商业性质,40年产权,形成不同单元模块。其中,潮商广场A座按5A甲级写字楼标准设计,标准层高4.2米,共23层;B座为微型空间,各单元模块较小,标准层高3.3米,共29层,为微型企业提供环境。潮商广场内设1-3层商业建筑,沿建筑周边设置商业骑楼,形成特色商铺;二层设置内部U形商业动线,沿商业动线形成商铺及集中商业;三层设置架空楼层,内嵌商业house,满足餐饮、娱乐等要求。
    查看更多

    预约看房

    手机号
    姓名
    分享到
    分享到QQ、微信等,请使用浏览器、微信、QQ的分享功能进行分享,您也可以复制以下链接进行分享。
    发送楼盘信息到手机
    拨打

    楼盘点评
    在线咨询 0
    长按识别二维码
    0755-86968612

    南宁住朋网微信公众号(查看更多)

    电脑端关于我们 联系我们 反馈/举报

    申明:楼盘信息由开发商提供,最终以政府部门登记备案为准,请谨慎核查。

    增值电信业务经营许可证:桂B2-20210597

    桂ICP备:桂B2-20050072-1

    桂公网安备:45010302000021

    举报电话:0755-86968612 | 举报邮箱:zpgy@zp365.com

    中央网信办违法和不良信息举报中心

    广西互联网违法和不良信息举报中心

    南宁市互联网举报·辟谣平台

    涉企侵权举报专区