住朋网 住朋网 住朋网
图片

德天府售罄

团购登记 VIP特权
小户型 地铁沿线 学校附近 公园地产 交通便利

价格待定

参考价格 计算器

报价日期:2025-08-13,有效期至:2025-09-12。暂无销售动态(该价格为参考价格,实际价格以开发商为准!)

住宅

物业类型
(毛坯) 网友报价
楼盘关注度:33630人
开盘时间:
在售
交房时间:
一期2024年6月交付
项目地址:
南宁市西乡塘区明秀东路238号(地铁2号线和5号线交汇处,明秀路站)
售楼地址:
西乡塘区明秀东路187号碧园商城2楼润联咨询中心
联系电话:
4008-100-077 转 61172
产权年限:
70年
物业类型:
住宅
装修情况:
毛坯
所在城区:
西乡塘区
售楼地址:
西乡塘区明秀东路187号碧园商城2楼润联咨询中心
项目位置:
南宁市西乡塘区明秀东路238号(地铁2号线和5号线交汇处,明秀路站)
商:
崇左市驻南宁管理处建设
 
费:
物业公司:
 
数:
4973户
地:
198.00亩
面:
754256.79平米
率:
5.76
绿率:
26%
车位描述:
约5936个
建筑详情:
分三个地块(不含配套小学校)建设,项目规划设计23栋住宅楼4973套住房及其配套商业、1所24个班小学、1所12个班幼儿园、1栋综合楼
展开更多
  • 发送楼盘信息
  • 订阅

楼盘时刻

查看详细>

交房

2024年09月14日

开工

2022年01月31日

收起
  • 在售
  • 待售
  • 售完
    点击加载更多
    项目名为德天府,由崇左市驻南宁管理处建设,预算平均售价8600元/㎡(毛坯房),并说明*终以工程竣工验收结算后经审计机构审核,房改部门确认为准。房子和车位都能商业贷款。
    德天府自配建一所24班小学及一所12班幼儿园,还有秀田小学+十八中的加持。项目临靠友爱路和明秀路交汇处,地铁2号线与5号线交汇处明秀路站出口,往东800米便是大唐天城商圈,往西两公里为西大商圈,往南两三公里即朝阳-火车站商圈。
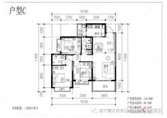
    整个项目分三期建设,共新建23栋住宅楼,供应非还建住房约2800套,其中**期建设供应非还建住房约1250套。产品户型有129-144㎡四房两厅两卫、98-114㎡三房两厅两卫、93㎡三房两厅一卫、79-87㎡两房两厅一卫。一期预计2024年6月交付,二期/三期未拆迁完成。
    查看更多

    预约看房

    手机号
    姓名
    分享到
    分享到QQ、微信等,请使用浏览器、微信、QQ的分享功能进行分享,您也可以复制以下链接进行分享。
    发送楼盘信息到手机
    拨打

    楼盘点评
    在线咨询 0
    长按识别二维码
    0771-96355

    南宁住朋网微信公众号(查看更多)

    电脑端关于我们 联系我们 反馈/举报

    申明:楼盘信息由开发商提供,最终以政府部门登记备案为准,请谨慎核查。

    增值电信业务经营许可证:桂B2-20210597

    桂ICP备:桂B2-20050072-1

    桂公网安备:45010302000021

    举报电话:0771-96355 | 举报邮箱:zpgy@zp365.com

    中央网信办违法和不良信息举报中心

    广西互联网违法和不良信息举报中心

    南宁市互联网举报·辟谣平台

    涉企侵权举报专区