住朋网 住朋网 住朋网

琴海名厦园售罄

团购登记 VIP特权

4000元/㎡

参考价格 计算器

报价日期:2009-03-21,有效期至:2009-04-20。(该价格为参考价格,实际价格以开发商为准!)

住宅

物业类型
(毛坯) 网友报价
楼盘关注度:54637人
预售证号:
南房预字2005第126号
开盘时间:
2007-11-11
交房时间:
2007年11月
项目地址:
南宁市大沙田开发区金沙大道25-11号
售楼地址:
南宁市大沙田开发区金沙大道25-11号
联系电话:
4008-100-077 转
产权年限:
-
物业类型:
住宅
装修情况:
毛坯
所在城区:
良庆区
售楼地址:
南宁市大沙田开发区金沙大道25-11号
项目位置:
南宁市大沙田开发区金沙大道25-11号
商:
南宁名厦房地产有限责任公司
 
费:
0.75元/平米/月
物业公司:
诚愉物业公司
 
数:
386户
地:
30.00亩
面:
47500.00平米
率:
2.00
绿率:
35%
展开更多
  • 发送楼盘信息
  • 订阅
    点击加载更多
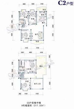
      准现房预售亭江路开通,南宁大桥、公交总站的建成,出行无忧,英华学校、阳光小学、银行、菜市近在咫尺,生活便利近5万平米的**面积,框架结构,底层架空绿化、庭院组合绿化、休闲设施齐全  充分运用飘窗设计,通风采光效果**、星级智能防护系统,平安相位,彰显尊贵生活  琴海名厦园零距离邕江,倚五象岭脚,居高临下,坐拥邕江首排**江景,实乃上风上水之稀缺名宅宝地,城市居住空间天赋异秉。以人为本的创新设计、自然独特的滨水建筑艺术、流畅优美的轮廓线条、明快雅致的外立面色彩,每一个流淌在建筑的元素中,皆在不经意间彰显着居住者的格调与品味:苛刻不失宽容、豪华不失尊贵、时尚不失自然,将水的形态与神韵彰显**,成就琴海名厦园浪漫水岸,优雅一生的滨水名流生活。   琴海名厦园邕江首排水景宅王10栋、11栋,全部一梯两户、一梯四户建筑设计,空间通透开扬,江景视野无限拓延,106~148㎡宽景三房、四房,尊豪楼中楼,别墅级的水岸景观,日益完善的社区生活配套,无可匹敌的区域前景,尽享江畔亲水豪宅的至尚生活姿彩。 
    查看更多

    本小区二手房

    预约看房

    手机号
    姓名
    分享到
    分享到QQ、微信等,请使用浏览器、微信、QQ的分享功能进行分享,您也可以复制以下链接进行分享。
    发送楼盘信息到手机
    拨打

    楼盘点评
    在线咨询 0
    长按识别二维码
    0771-96355

    南宁住朋网微信公众号(查看更多)

    电脑端关于我们 联系我们 反馈/举报

    申明:楼盘信息由开发商提供,最终以政府部门登记备案为准,请谨慎核查。

    增值电信业务经营许可证:桂B2-20210597

    桂ICP备:桂B2-20050072-1

    桂公网安备:45010302000021

    举报电话:0771-96355 | 举报邮箱:zpgy@zp365.com

    中央网信办违法和不良信息举报中心

    广西互联网违法和不良信息举报中心

    南宁市互联网举报·辟谣平台

    涉企侵权举报专区